
DĚTSKÝ POKOJ PRO TVOŘIVOU MYSL
realizace 2025
vítěz Czech Interior Award 2026, kategorie Jednotlivé místnosti
Pro mladou rodinu jsem vytvořila dětský pokoj navržený tak, aby byl variabilní a rostl spolu s dětmi. Cílem bylo navrhnout interiér, jenž se přirozeně promění z herního pokoje v místo pro učení a odpočinek.
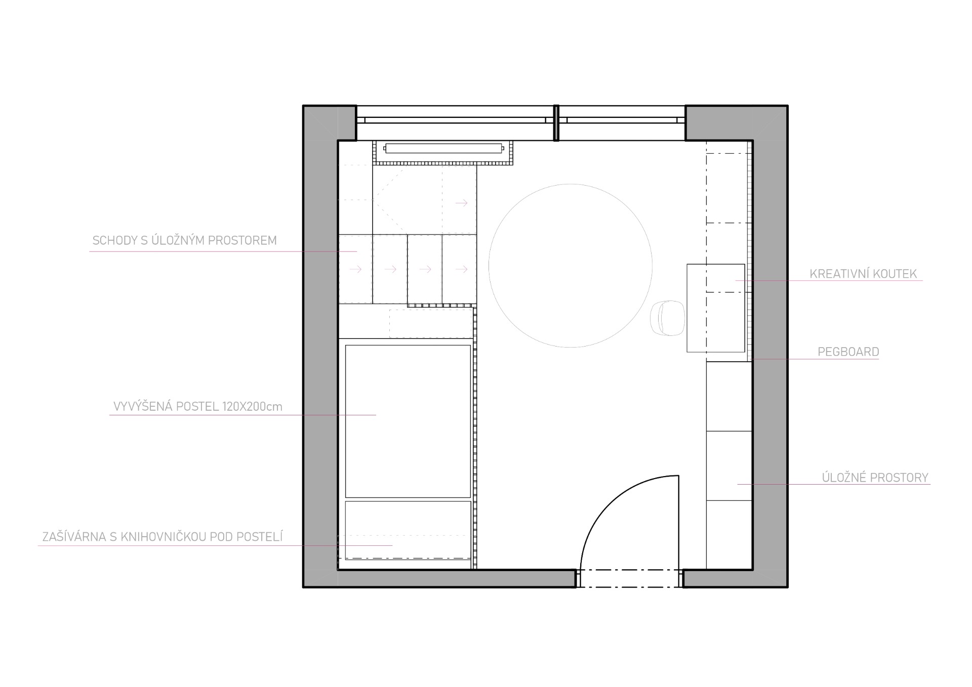
Na ploše přibližně 13 m² vznikla kompozice kombinující spací, úložnou i herní zónu. Vyvýšené lůžko (120 × 200 cm) se schody s integrovanými zásuvkami vytváří pod sebou "zašívárnu" pro čtení a hru, která je zároveň navržena tak, aby ji bylo možné v budoucnu využít i jako plnohodnotné místo na spaní. Schody zároveň slouží jako praktický úložný prostor na hračky a také jako sezení pro dospělé, kteří tak mohou být s dětmi v kontaktu, aniž by museli sedět na zemi.
Naproti posteli je kreativní koutek s pegboardem, který lze později snadno proměnit v pracovní místo pro školáka. Interiér je laděn do jemných tónů a doplněn autorskou nástěnnou malbou, která prostoru dodává osobitost a podporuje dětskou fantazii.
Důležitou roli hraje také zklidnění spací části pokoje. Stěna s autorskou malbou a motivem mraků plynule přechází z hravé zóny do klidnější části u lůžka. Barevný přechod do modrých tónů vytváří uklidňující atmosféru a přirozeně propojuje herní část s prostorem pro odpočinek. Ve spací části malba postupně ustupuje do jednoduché modré plochy, do které jen zlehka proplouvá svět fantazie, aby prostředí zůstalo vizuálně klidné a spánek nebyl ničím rušen.
Použité materiály – přírodní marmoleum a ekologické barvy – zajišťují zdravé a trvanlivé prostředí pro každodenní život rodiny. Cílem bylo vytvořit harmonický prostor, který propojuje funkčnost, proměnlivost a dětskou hravost s vizuálním klidem.

